Sunshine Coast Hinterland Real Estate

powered by Open2view.com
SOLD

Adelaide
3
2
N/A
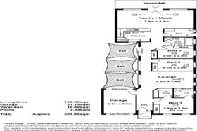
160sqm
424sqm
Adelaide
proudly marketed by
Alexander Zadow
Harcourts Sheppard
Absolutely Gorgeous ..... You're Going to Love It!
Absolutely Gorgeous ..... You're Going to Love It! Alexander Zadow of Brock Harcourts is proud to present this immaculately presented home. Best Offer By - Monday 17th October @ 6pm Price Guide: $560,000 - $580,000. With a modern street appeal and manicured landscaped gardens, I'm sure you'll be as impressed as I was once you enter this beautifully presented North facing home especially after you see the two living areas, huge entertaining courtyard and landscaped back yard with verandah. The hardest thing you'll need to do in this home is work out where to place your furniture because everything's done. This one surprised me with the amount of accommodation and features on offer ..... and there are plenty! The three bedrooms all have built in sliding robes and ceiling fans but bedroom one also has a walk in robe and ensuite bathroom. There are two living areas, a formal living room and the traditional open plan family room overlooking the immaculate back yard. The kitchen has excellent bench space, a gas cook top, dishwasher and water filter while the main bathroom presents like it's never been used with a timeless black and white colour scheme. Outside, there are two separate entertaining areas. A large paved courtyard is shaded by sails with easy access to the kitchen through a sliding door but it could also double as vehicle parking from the drive through auto garage. If this was the case there's still room for the car and a seating area. Across the rear of the house is a full length verandah accessed by French doors from the family room. This is a lovely area to sit protected from any weather overlooking the landscaped gardens and lush lawn. With today's indoor outdoor entertaining preference you're spoilt for choice here. Expected extras include ducted reverse cycle air conditioning, security system, halogen down lights, laundry with built in storage, Foxtel cabling and quality flooring and window treatments throughout. This highly desirable Eastern suburb is so close to Magill Road and The Norwood Parade with their great mix of contemporary shopping and dining facilities. Highly regarded schools and colleges such as Pembroke, Norwood Morialta, Magill Primary and St Peters Girls are close by and the City centre is only a 15 minute drive away. Serviced by excellent public transport on several different bus routes with Uni SA's Magill campus within walking distance. Parks and reserves are dotted throughout the suburb with the much revered Kensington Gardens Reserve with its public tennis courts and play ground only a short walk away. Abundant native birdlife is everywhere along with the occasional visiting koala or two! Alexander Zadow - 0413 700 631 Your Magill sales specialist RLA 200675 For a free no obligation appraisal of your home or investment property please contact me anytime on 0413 700 631 OR view website: www.alexanderzadow.brockharcourts.com.au to see other homes for sale, sold properties in any suburb, selling tips and community information.
Question
Upload by Erin Beare
Burnside-Norwood